Haus Schwertgasse

Ort

Schwertgasse, 9000 St.Gallen

Auftragsart

Direktauftrag, 2004

Ausführung

2012–2013

Auftraggeber

Privat

Kunst am Bau

Tobias Maximilian Schnell

Fotografie

Karin Gauch und Fabien Schwartz

Die Schwertgasse liegt im Quartier St. Mangen in der nordöstlichen Altstadt St.Gallens. Bauten aus unterschiedlichen Zeiträumen fügen sich dort zu einem dichten und vielschichtigen Stadtkörper. Der Neubau an der Schwertgasse 15 ersetzt ein im Jahr 2002 durch einen Brand zerstörtes Altstadthaus. Das unaufdringliche Wohn- und Geschäftshaus weist Referenzen an seine Nachbarhäuser aus unterschiedlichen Epochen auf. Nebst der Schwertgasse ist die Parzelle durch das schmale Heidengässlein begrenzt, das in die Katharinengasse führt. Dort befindet sich das ehemalige Dominikanerinnenkloster St. Katharina. Mehr

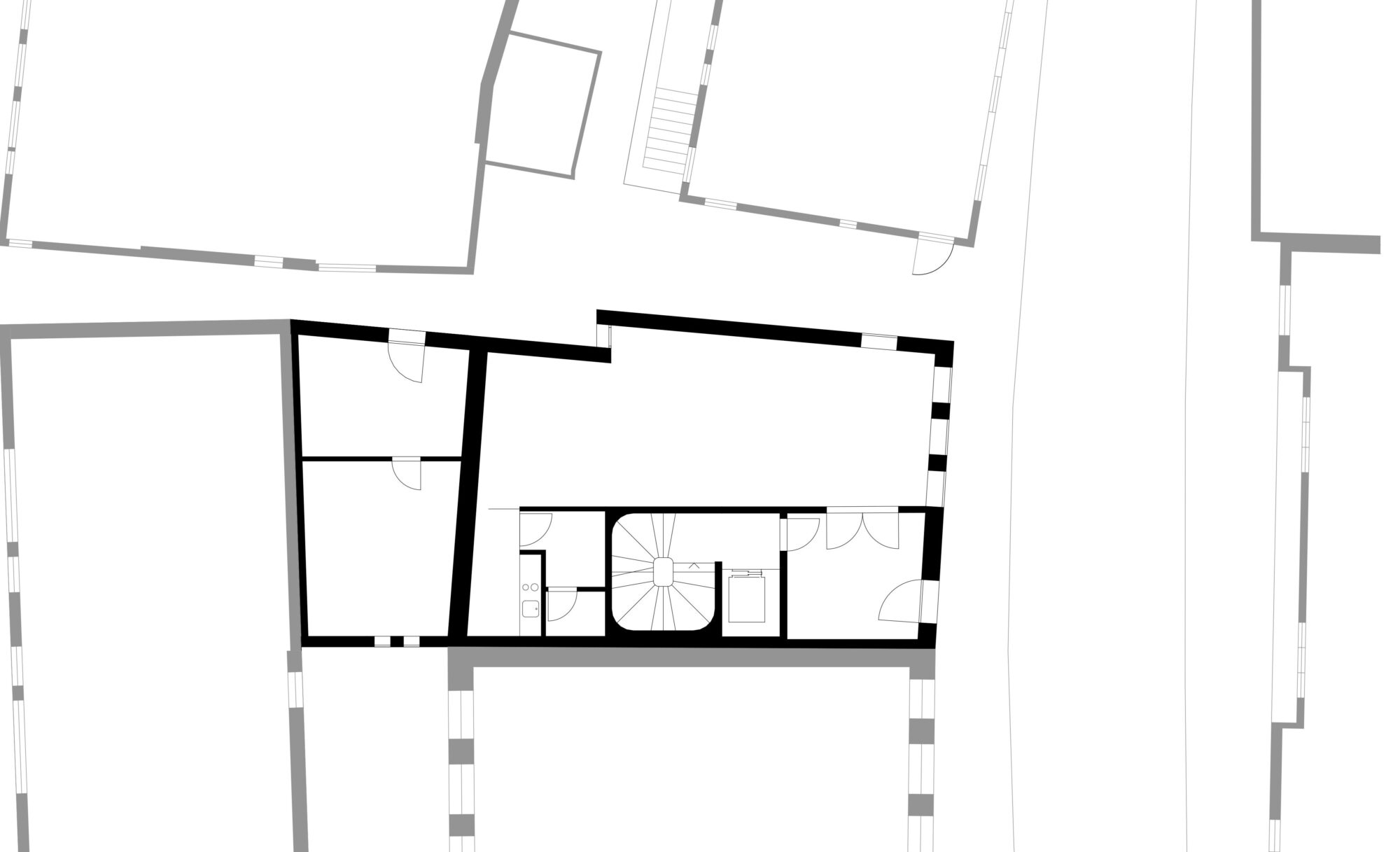
Der Grundriss des Gebäudes nimmt den verwinkelten Verlauf des Heidengässleins auf und macht ihn mittels schmalen Fenstern zum Gassenraum erlebbar. Im Erdgeschoss befindet sich eine ortstypische Gewerbefläche mit Schaufenstern zur Schwertgasse. Das erste Obergeschoss beinhaltet eine Geschosswohnung mit rückseitiger Terrasse. Über das zweite und dritte Obergeschoss erstreckt sich eine Maisonettewohnung. Diese profitiert von einer Dachterrasse mit Abendsonne und einem atemberaubenden Blick über die Dächer des St. Mangen-Quartiers. Ein eingeschossiges Atelier verbindet das Haus mit dem westlichen Nachbargebäude.
Mit seiner schlichten Hauptfassade fügt sich der Neubau in die historische Häuserzeile an der Schwertgasse ein. Das graue Sockelgeschoss aus gestocktem Beton hebt sich von den hell verputzten Obergeschossen ab. Aussen angeschlagene Fenster aus Baubronze nehmen Bezug auf die aussen bündigen Vorfenster der benachbarten Riegelhäuser. Eine weitere Gemeinsamkeit mit den Nachbarhäusern sind die markanten, braun gestrichenen Holzläden. Deren schmalste Seiten gestaltete der Künstler Tobias Maximilian Schnell mit unterschiedlichen Wörtern. Die Seitenfassade zum Heidengässlein weist frei angeordnete Lochfenster ohne Läden auf. Die versteckte Hinterhausfassade ist in gestocktem Beton ausgeführt. Das Atelier an der Schnittstelle zum Nachbarhaus ist mit einer gestrichenen Holzverschalung versehen, was seinen Charakter als Hofgebäude hervorhebt.
Weniger

Schwertgasse
Ansicht Schwertgasse
Situationsplan
Ansicht Schwertgasse
Ansicht Schwertgasse
Längsschnitt
Treppenaufgang Dachgeschoss
Blick ins Heidengässlein
Blick aus der Küche
Erdgeschoss, Gewerbe
2. Obergeschoss, Wohnen
Dachgeschoss, Wohnen
Wohnraum 3.5 Zimmerwohnung
Blick aufs Kloster St. Katharina
Dachterrasse
Detailplan Treppe
Treppenhaus
Treppenauge
Fassadenansicht zur Schwertgasse
nach oben