Areal Oedenhof

Ort

Romanshornerstrasse, 9300 Wittenbach

Auftragsart

Wettbewerb, 1.Rang 2013

Ausführung

2018–2021

Auftraggeberin

Genossenschaft Migros Ostschweiz

Generalplanung

Bollhalder Walser Architektur AG
 

Fotografie

Ladina Bischof

Das Areal Oedenhof liegt im Zentrum Wittenbachs und verleiht diesem ein neues Gesicht. Es besteht aus einer Serie von Punkthäusern sowie einem flachen Hauptbau mit Gewerbenutzung. Adressbildend ist der achtgeschossige Hochpunkt an der Kreuzung Romanshorner-/Bahnhofstrasse. Er nimmt die Fassadenfluchten der Romanshornerstrasse auf und vervollständigt den Strassenraum. Durch die lockere Setzung der Baukörper weist die Überbauung eine hohe Durchlässigkeit auf. Es entstehen neue Verbindungen durchs Quartier und einladende Plätze, die zum Verweilen einladen. In den Erdgeschossen tragen publikumsorientierte Nutzungen zur Belebung des Ortszentrums bei. Bollhalder Eberle Architektur zeichnet für das dem Gesamtareal zugrundeliegende städtebauliche Konzept sowie für Planung und Bau des eigentlichen Oedenhofs verantwortlich. Mehr

 
Dieser Gebäudekomplex umfasst einen Sockelbau mit einem riegelförmigen Aufsatz sowie zwei zu den Strassenräumen gewandten Punktbauten. Der grosszügige Vorplatz auf der Westseite verbindet sich mit dem Freiraum der angrenzenden Überbauung «Zum Zentrum» zu einem gemeinsamen Platz. Während das Erdgeschoss dem Detailhandel vorbehalten ist, befinden sich auf den Obergeschossen 59 Mietwohnungen mit 2.5 bis 3.5 Zimmern. Die Dachfläche über dem Sockel ist intensiv begrünt: Ein Garten mit Sträuchern und Blumen bildet einen Blickfang für die Bewohnerinnen und Bewohner, die von rundherum darauf blicken. Liegt eine Wohnung im ersten Obergeschoss und grenzt an den Dachgarten, verfügt sie dort über eine private Terrasse. Alle anderen Wohnungen besitzen private Aussenräume in Form von Loggien. Die Wohnungsgrundrisse zeichnen sich durch fliessende Raumübergänge und den Verzicht auf klassische Korridore aus.
 
Der Oedenhof verfügt über das Minergie-Label. Die Wärmegewinnung erfolgt über eine Erdsondenanlage. Zudem wird die anfallende Abwärme aus den Kühlanlagen des Grossverteilers genutzt. Zur Stromerzeugung leisten die Photovoltaik-Anlagen auf den Dächern einen beachtlichen Beitrag. Diese Module sind so angeordnet, dass sie eine eigenständige Form und einen integralen Bestandteil der Architektur bilden. Zu dunklen Hüten geformt, setzen sie einen Akzent auf den Gebäudekörpern.
 
Klare, geometrische Formen zeichnen die Überbauung aus. Die beiden Punkthäuser weisen dieselbe Gliederung in Sockel, Mittelteil und Dachkranz auf. Beton-Elemente verleihen den Fassaden eine kräftige Struktur. Verputzte Wandfelder alternieren mit Fensterflächen und Loggien. So erhält der Oedenhof einen vorstädtischen, identitätsstiftenden Charakter, mit dem er das Zentrum Wittenbachs fortan prägt.
Weniger

Areal Oedenhof
Ecke Romanshornerstrasse–Bahnhofstrasse
Hauptfassade Romanshornerstrasse
Situationsplan
Ansicht Nord
Ansicht Süd
Ansicht Ost
Ansicht West
Rue Intérieure
Parkgarage
Haus Süd
Querschnitt
Längsschnitt
Zugang, Haus Nord
Vorplatz, Haus Nord
Eingangstüre, Haus Nord
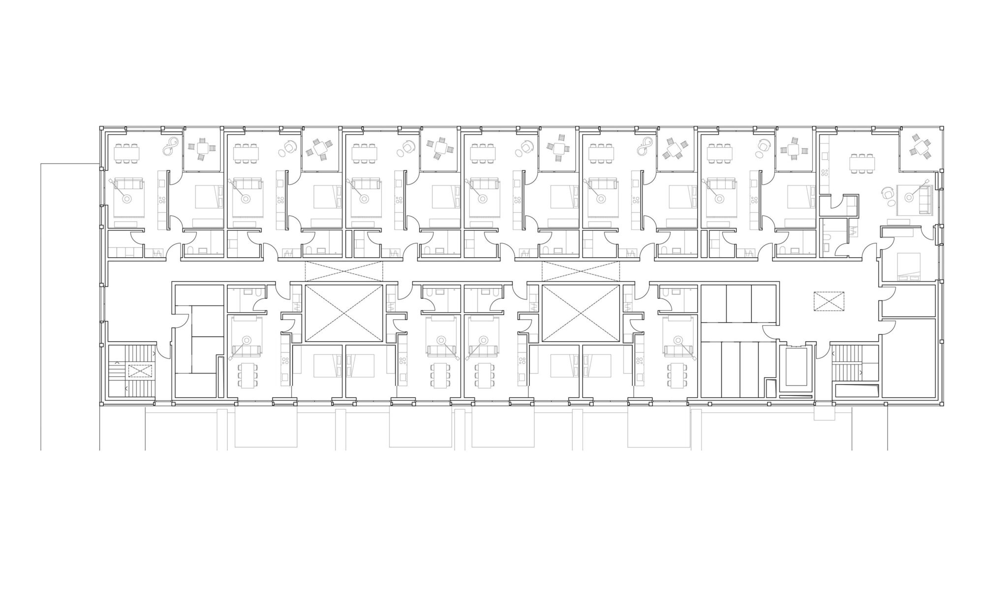
6.–7. Obergeschoss, Wohnen
2.–5. Obergeschoss, Wohnen
1. Obergeschoss, Wohnen
Treppenauge
Treppenhaus
Treppenhaus
Laibung Wohnungstüre
Korridor
Erdgeschoss, Gewerbe
1. Untergeschoss
2. Untergeschoss
Blick in die Tiefe
Eingangsbereich
Kochen
Essen
Blick zur Küche
Wohnen
Regelgeschoss, Haus Nord
Regelgeschoss, Haus Süd
1. Obergeschoss, Haus West
Küche/Wohnen
Übergänge
Bezüge
Bereiche
Detailplan Loggia
nach oben