Schulanlage Thurgauerstrasse
Thurgauerstrasse 55, 8052 Zürich
Wettbewerb, 1. Rang 2017
2021–2024
Stadt Zürich, Amt für Hochbauten
Pauli Stricker GmbH, St.Gallen
Borgogno Eggenberger + Partner AG, St.Gallen
Wirkungsgrad Ingenieure AG, Rapperswil-Jona
Onari Projects, Zürich & Hot Wire Extensions, Zürich
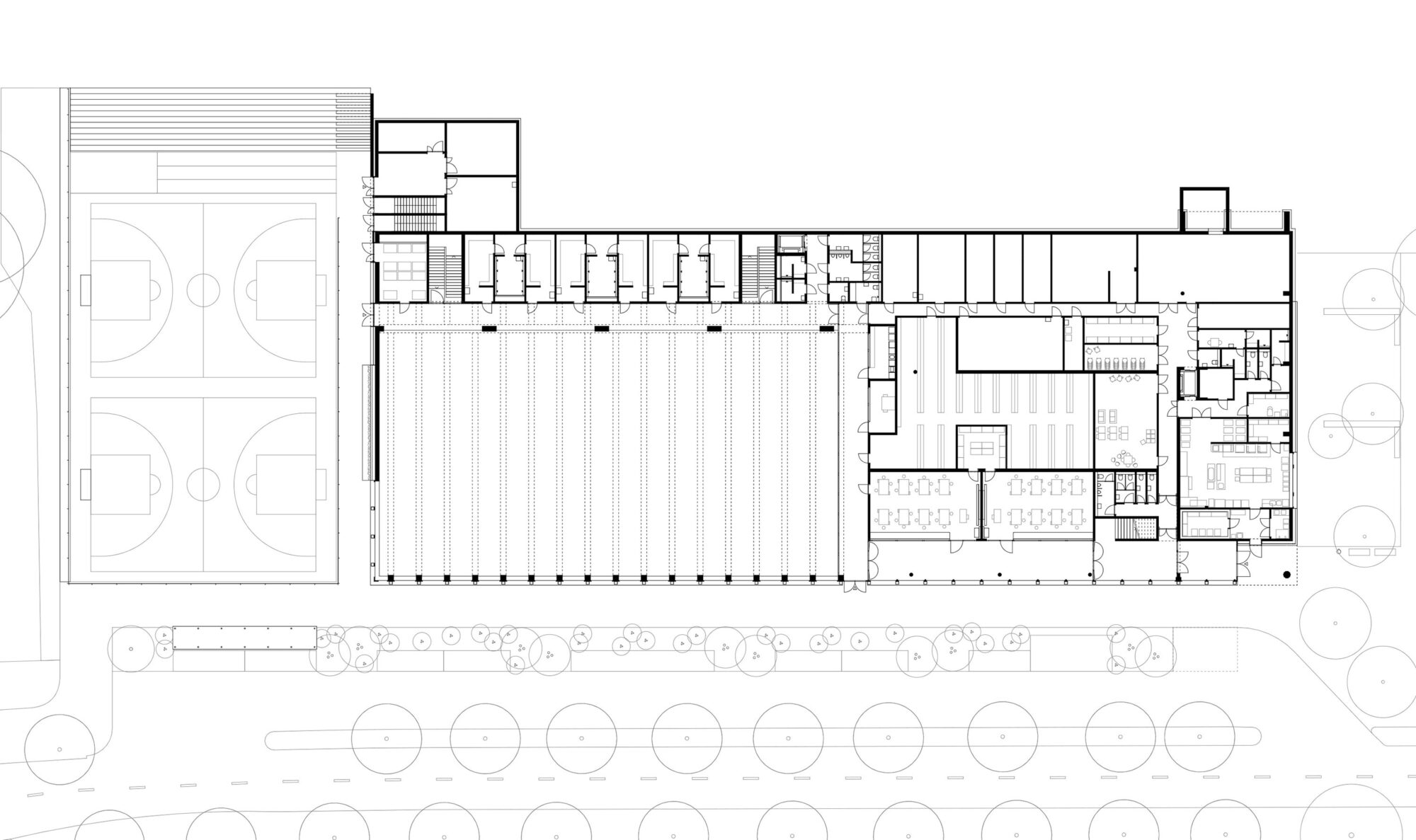
Die neue Schulanlage für rund 400 Schüler:innen ist als Tagesschule auf Primarstufe mit Mensa und entsprechenden Betreuungsräumen, Kindergärten und einer Doppelsporthalle auf rund 10’000 m2 GF konzipiert. Sie bietet Platz für 18 Schulklassen, zwei Kindergärten, Räume der Musikschule, Werkräume, eine Bibliothek und einen Mehrzweckraum. Hinzu kommen Räume für die Gebäudetechnik, die Reinigung, den Hausdienst sowie Garderoben und WC-Anlagen. Zur Schule gehören Pausenflächen für die Primarschule, separate Pausenflächen für die Kindergärten, ein Allwetterplatz, eine Sprunganlage sowie ein Pflanzgarten und Aussenanlagen, die ausserhalb der Schulzeiten dem Quartier zur Verfügung stehen. Mehr
Das L-förmige, 90 m lange Schulhaus nutzt das Baufeld in seiner vollen Längenausdehnung aus, fasst die verkehrsreiche Thurgauerstrasse mit ihren grossmassstäblichen Bauten und betont deren Flucht. Zum rückwärtig höher gelegenen, ruhigen Wohnquartier mit Ein- und Mehrfamilienhäusern hin, zeigt sich das Schulhaus tief und volumetrisch kleinteilig und bildet mit Spiel- und Aufenthaltsbereichen im vielschichtig gestalteten Aussenraum zwischen Schule und Quartierstrasse das Herzstück der Anlage. Damit fügt sich der schlanke Gebäudetyp selbstverständlich in die unmittelbare, sehr kontrastreiche Umgebung ein. Eine zweite 40 m lange Fassade bildet eine Winkelfigur, die so den geplanten Quartierpark im Norden fasst. Strukturelle Halbhöfe in der Nordwestfassade gliedern den Baukörper noch kleinteiliger. Die sich auf diese Weise abzeichnenden Risalite bilden die Clustereinheiten mit kindgerechter Massstäblichkeit des Schulgebäudes nach aussen ab. Der Allwetterplatz auf Niveau der Thurgauerstrasse mit ausformulierten Sitzstufen komplettiert eine Adressbildung, welche die Bedeutung des Schulbaus als öffentliches Gebäude unterstreicht.
Im Erdgeschoss, auf der Ebene des Pausenplatzes, sind der Kindergarten mit separatem Aussenbereich angeordnet sowie die Mensa und der Mehrzweckraum, die sich zum Park hin orientieren. Hier befinden sich auch die Bibliothek, die Musikräume und die Psychomotorik. In den beiden Obergeschossen liegen im Hauptbaukörper die sechs Cluster, die jeweils aus drei Klassenzimmern, zwei Gruppenräumen sowie einem strukturell abgedrehten Betreuungsraum bestehen. Diese Schulräume gruppieren sich pro Cluster um eine gemeinsame Mitte, die als Aufenthaltszone, Garderobe und erweiterter Schulraum dient. Gruppenräume mit Flügeltüren grenzen an die benachbarten Cluster, wodurch sich zusätzlich eine horizontale Erschliessung des Schulgebäudes durch diese Räume entsteht. Im parkseitigen Gebäudetrakt befinden sich die Handarbeits- und Therapieräume. Die Schulpersonalbereiche, die Schulleitung sowie das Sekretariat sind ebenfalls hier angeordnet. Dieser Trakt verfügt ab Pausenplatzniveau über eine eigene Treppen- und Lifterschliessung. Im Sockelgeschoss des Hauses befindet sich der Zugang zum Sportbereich mit Doppelsporthalle sowie zur Regenerierküche. Zudem sind hier die Werkräume angeordnet.
Das Schulhaus wird vom Pausenplatz an der Grubenackerstrasse sowie von der Thurgauerstrasse her erschlossen. Über diesen Eingang erreichen Kinder, Lehrpersonen und Besucher von Südosten her die Schule. Er führt über eine attraktive Treppe zum internen «Boulevard» auf der Ebene des Pausenplatzes. Über diesen horizontalen Erschliessungsbereich sind alle Nutzungen übersichtlich erreichbar.
Eine zentrale Rolle spielt die Aussenraumgestaltung, da sie einen Beitrag zum ökologischen Ausgleich im Siedlungsraum beiträgt. Rankgerüste entlang der geschlossenen Stirnfassaden ermöglichen eine dichte, erdgebundene Vertikalbegrünung grosser Fassadenteile, strahlenförmig aufgespannte Rankseile begrünen die Halbhöfe. Als fünfte Fassade wird das grosse, von allen umliegenden Gebäuden einsehbare Dach, extensiv begrünt. Dies stellt sowohl ökologisch als auch ästhetisch einen erheblichen Mehrwert dar. Eine regelmässige, von der statischen Struktur unabhängige, Bandfassade prägt nicht nur den Ausdruck des Gebäudes, sondern wurde auch für die Montage von kostengünstigen, standardisierten Photovoltaik-Paneelen hinter hinterlüfteten Well-Polycarbonat-Fassadenplatten an den Brüstungen genutzt. Diese semitransparente Fassade des Hauses wird erst auf den zweiten Blick lesbar und ermöglicht eine mehrfache Lesbarkeit. Je nach Tageszeit und Lichtstimmung erscheint das Haus ganz unterschiedlich. Durch die Solarfassade wird im Betrieb ein niedriger Energieverbrauch erreicht und bei einem geschätzten jährlichen Verbrauch der Schulanlage von ca. 340'000 kWh liegt der Eigenverbrauch bei ca. 50 Prozent. Gemäss den Vorgaben der Stadt Zürich werden zudem die Energiewerte des Minergie-P-ECO-Standards eingehalten.
Weniger








































