Feldmühle area
Feldmühle-Areal, Rorschach
Study competition, 2018
Steiner AG, Zürich
Hager Partner AG, Zürich
The large-scale buildings of the former embroidery factory have shaped the town of Rorschach since the end of the 19th century. Right in the centre of the town, the transformation of the site is of great importance. The open structure of the new block is precisely tailored to the site and its hillside location and combines existing and new elements.
The open public space is characterised by a sequence of squares. From the station, a staircase leads up to a tree-lined terrace. A few steps higher lies the heart of the area, the Feldmühleplatz. More intimate still is the Kaminplatz, a reminder of the site’s industrial past. More
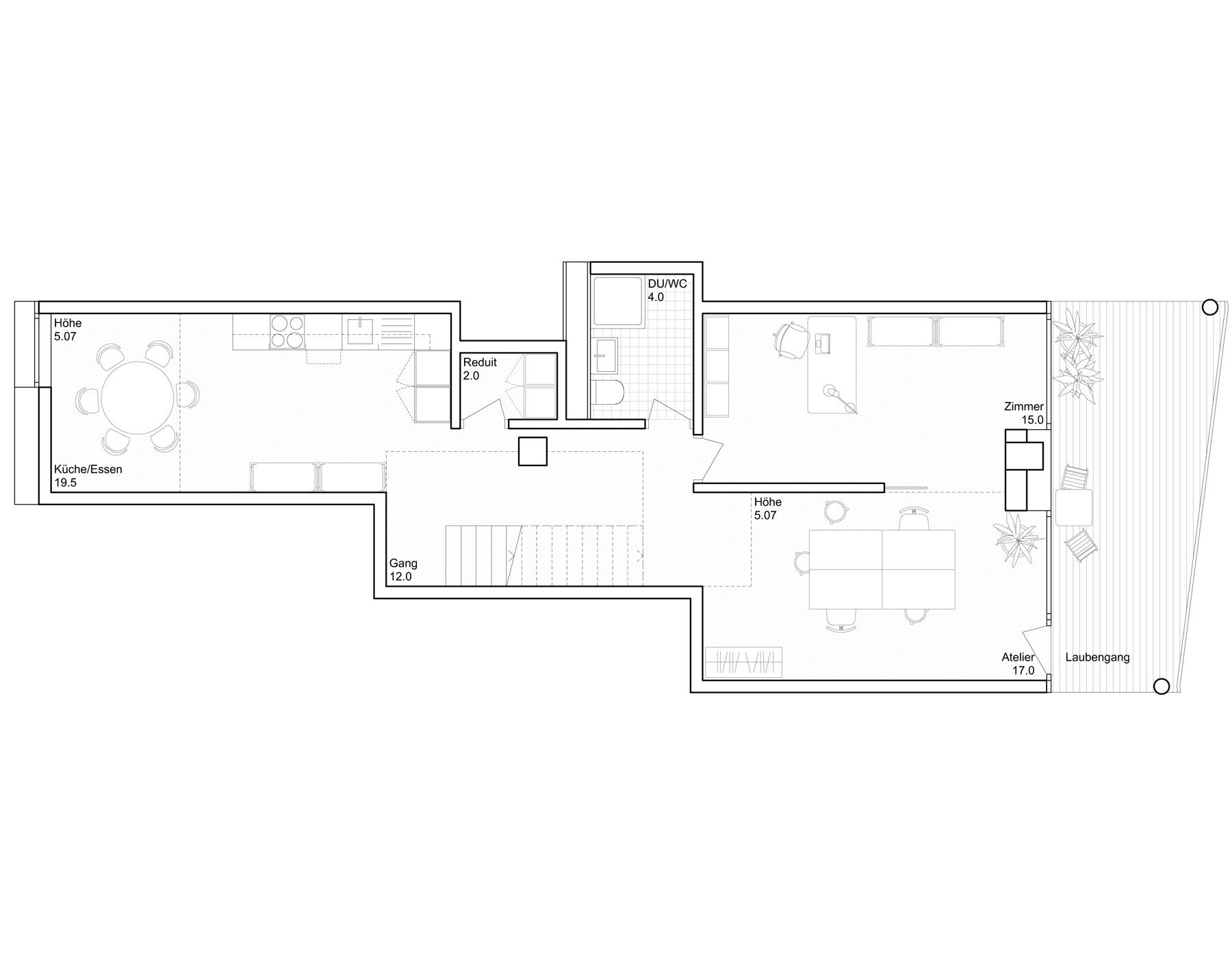
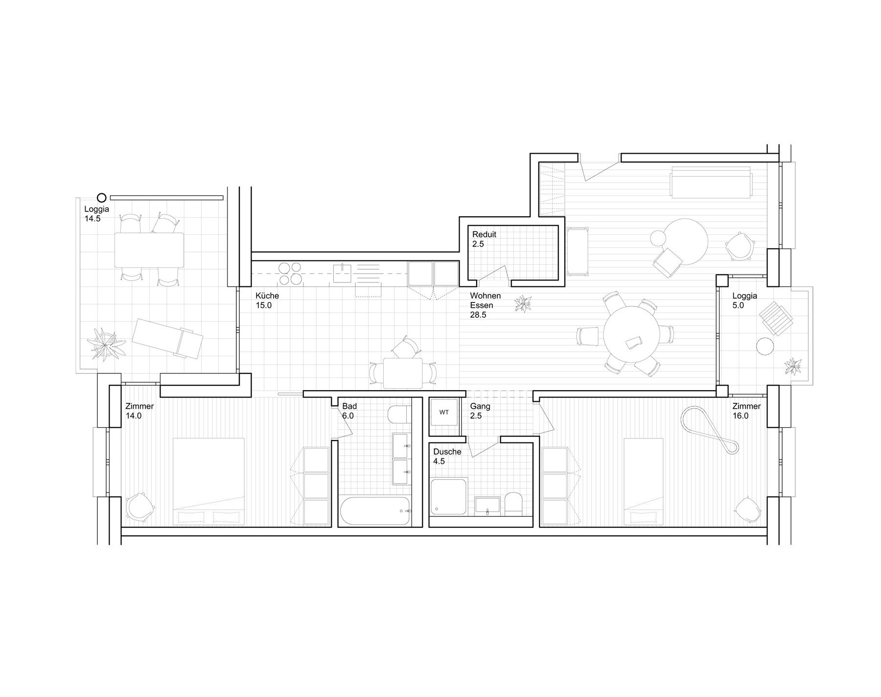
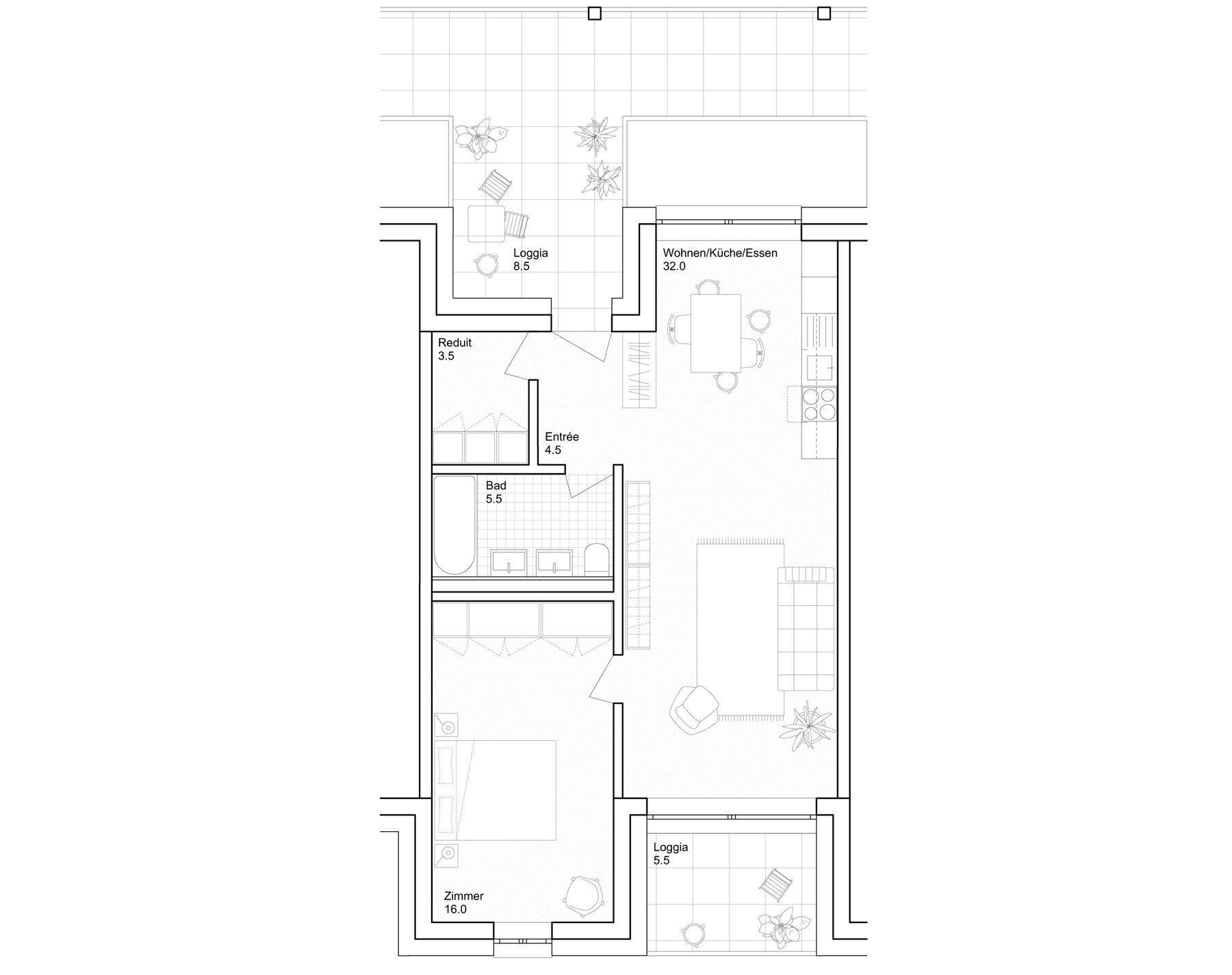
The form and apartment types of the individual new buildings are precisely tailored to their specific locations. The former administration building dominates the Bahnhofterrasse and has office units of different sizes and different places to eat. The existing building on Feldmühlestrasse will contain loft-like apartments. Almost of the apartments all are dual aspect. The long building along Pestalozzistrasse responds to the noise of the street with its bent form and deep-plan apartments. The compact building at the south-eastern entrance to the site sets an urban accent to the scheme.
The new buildings are all related in their expression. Characteristic elements such as prefabricated concrete parapets or plastered wall sections are repeated. The different development and apartment typologies of the individual buildings are visible from the outside.
Less






















