Löwengarten area

Location

Löwengartenareal, 9400 Rorschach

Type of contract

Competition, 1st Prize 2010

Construction period

2016–2021

Client

UZE AG; Rosenberg Invest AG

Landscape

Pauli Stricker GmbH, St.Gallen

Civil engineering

Wälli AG Ingenieure, St.Gallen

HVAC planning

Kempter + Partner AG, St.Gallen

Signage system

HinterSchlatterFeuz Grafik, Zürich

Photography

Lukas Murer

When the Löwengarten brewery closed after 135 years, the site lost its former purpose. The new development picks up on the history of the site with a dense, mixed-use development which once again makes it a significant place
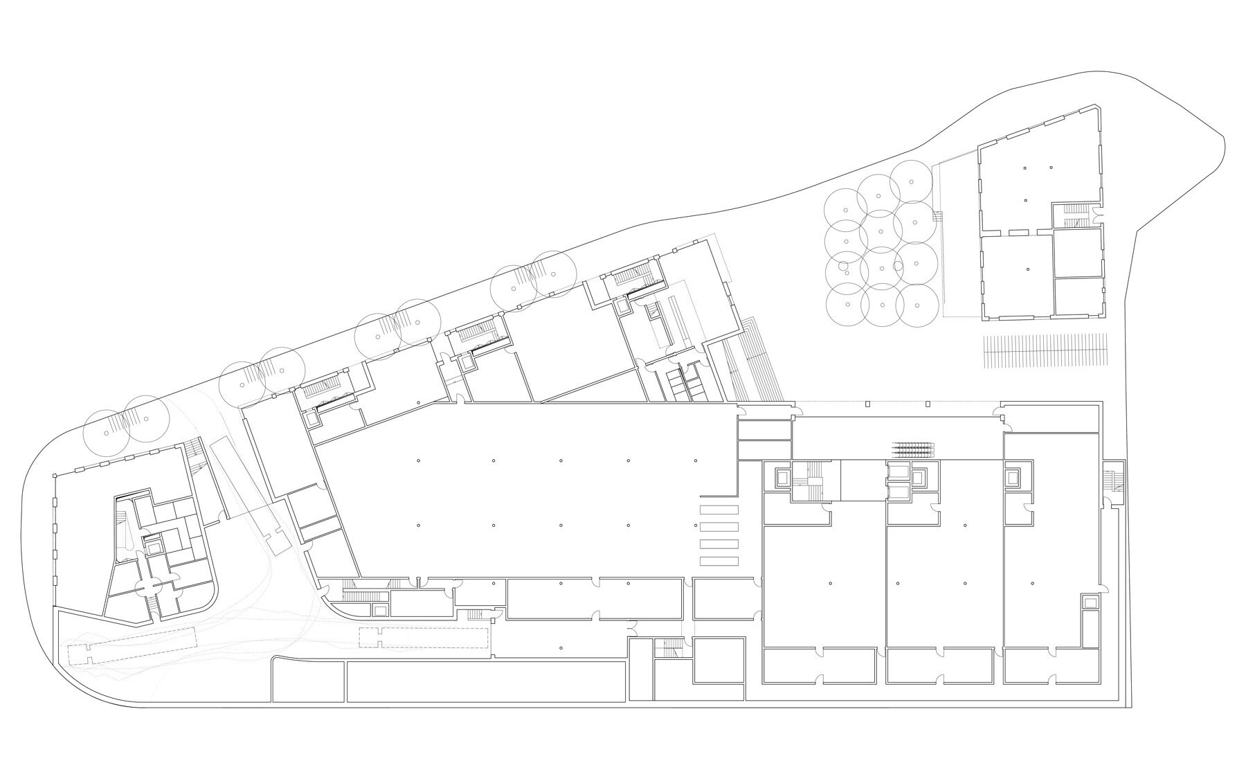
The plot is spanned by St. Gallerstrasse and Löwengartenstrasse and is characterised by the sloping topography to the north. Together with the former bottling plant, which is a listed building, the two linear buildings define a public square. This urban space was already present in the old structure and should continue to serve as an urban identification point. More

On the west side, a higher, compact building completes the development. To the south, the new buildings create a semi-public outdoor space for residential use. In front of the southern linear building is a low structure with terraced single-family houses. The new buildings fit into the surroundings in their volumes and heights and respect the former bottling plant.
The transformed area is characterised by a variety of uses consisting of retail, services, office, gastronomy and rented apartments. On the ground floor, freely subdividable retail spaces, several smaller shops and a restaurant are planned in the existing building. The service and office areas are located on the mezzanine floor and the first floor. The residential units are located on the other upper floors. These are oriented on two sides and benefit from both the sunlight from the south and the attractive lake view to the north.
The new buildings on the Löwengarten site carry on the spirit of the former brewery. On the urban planning level, this is achieved by setting the volumes in strong relation to the existing industrial plant. In the facades, references are made to the existing building at the material and form of openings. Despite its size, the old brewery had an expression of small, upright elements. This tension between vertical and horizontal expressive elements, some with a high proportion of walls, strongly characterises the expression of the new buildings.
Less

Lower ground floor
Upper ground floor
Upper floors
Cross section
Longitudinal section
East elevation
back to top