Campus Platztor
Platztor site, 9000 St.Gallen
Competition, 2021
Canton of St.Gallen, Building Department
Pauli Stricker GmbH Landscape Architects, St.Gallen
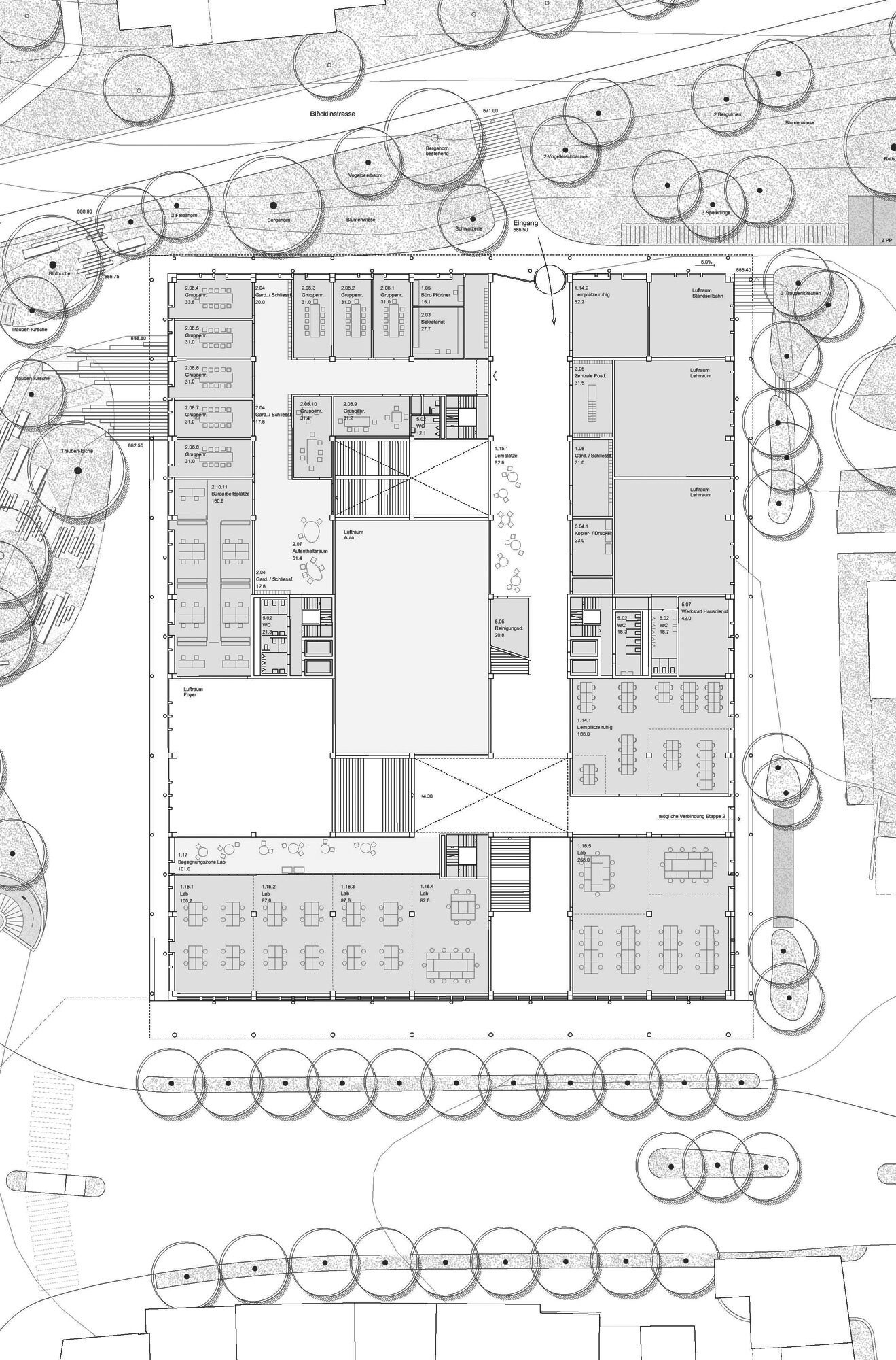
The university building on the new Platztor site forms the entrance to the other buildings of the campus along the Rosenberg, representing the renowned HSG in the centre of the city. The prominent solitaire building stretches from the St Jakob-Strasse to Böcklinstrasse and brings together the varied uses in one compact cubic volume. Its open facade and restaurants housed in the ground floor invite city dwellers and passers-by to partake in campus life. An adjacent square forms the entrance to the campus and connects the space of the Old Town with the new buildings. Like other public buildings in Saint Gallen, such as the theatre or the museums in the City Park, this campus also possesses a generous green space. The existing open church forms a further point of identification, and houses a public-oriented use in the in the area of gastronomy or culture. More
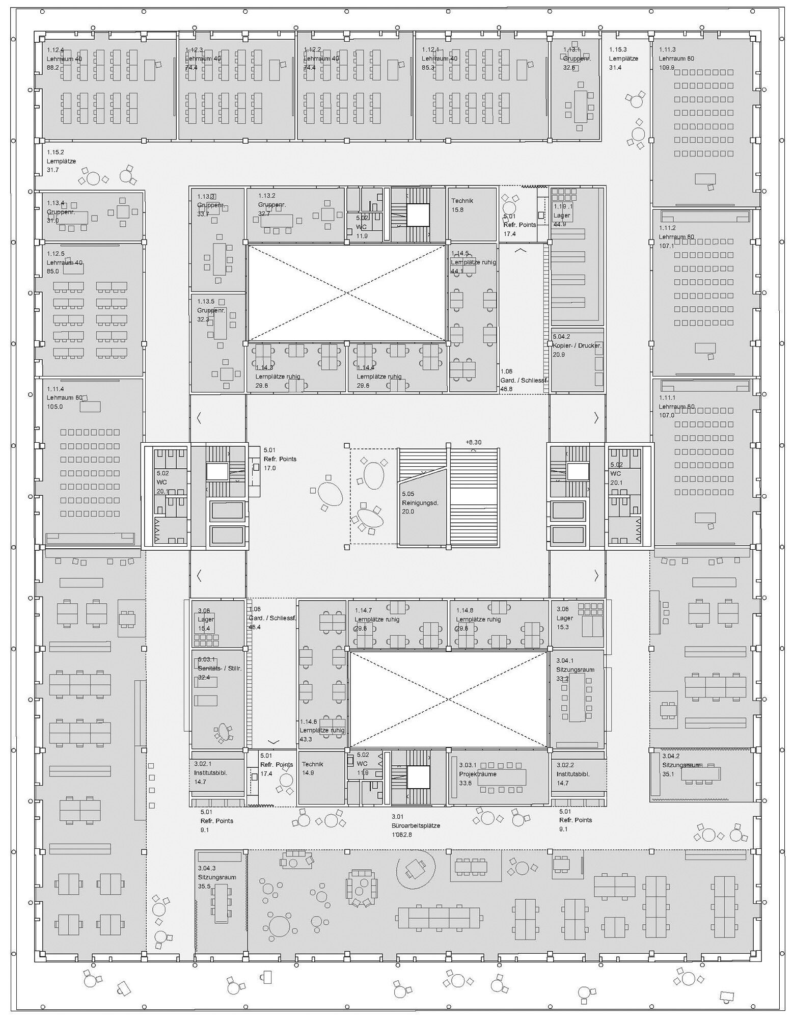
Visitors and students alike enter a generous foyer via the main entrance on the square, in which one finds areas for sitting and waiting as well as an adjacent Food Corner. A large staircase leads downwards along the facade, where the foyer continues to the hall in the middle of the building. Because of its situation on the hillside, the building has two entrance levels. The secondary entrances in the north and the south join these together and form principal passageway on the first floor. From here a cascade staircase leads to the floors above which consists of two parts: on the side towards St Jakob-Strasse open-plan office spaces for research, and on the other side, more intimates spaces are arranged for teaching. In the middle of the building the two areas blend into each other. Between the two atriums unfolds a generous circulation space with adjacent break areas where spontaneous encounters and informal conversations can take place. The building is capped off by a roof storey which, thanks to its generous spaces, has a public character. Alongside teaching, this floor serves as somewhere to socialise, relax and exercise. Here, one finds a coffee shop as well as different gym spaces which profit from natural light through a shed roof and a terrace which runs around the entire building. Alongside its compact volume and timber structure, the design of the roof makes an important contribution to the sustainable operation of the building. On the pitched surfaces of the shed roof a photovoltaic array is installed and the exterior surfaces of the terraces are intensively planted.
Continuing the arcades along St Jakob-Strasse, a spatial layer envelops the entire volume. The light white layer of balconies provides shade to the interior and serves as protection from noise and the elements. At the same time, this external layer of the building brought to life by the by the users creating a strong impression towards the Platztor campus, underlining its public character.
Less










