Schlosstal psychiatry
Wieshofstrasse, 8408 Winterthur
Competition, 1st Prize 2015
2019–2022
Canton of Zurich
raderschallpartner AG, Meilen
Ernst Basler Partner AG, Zürich
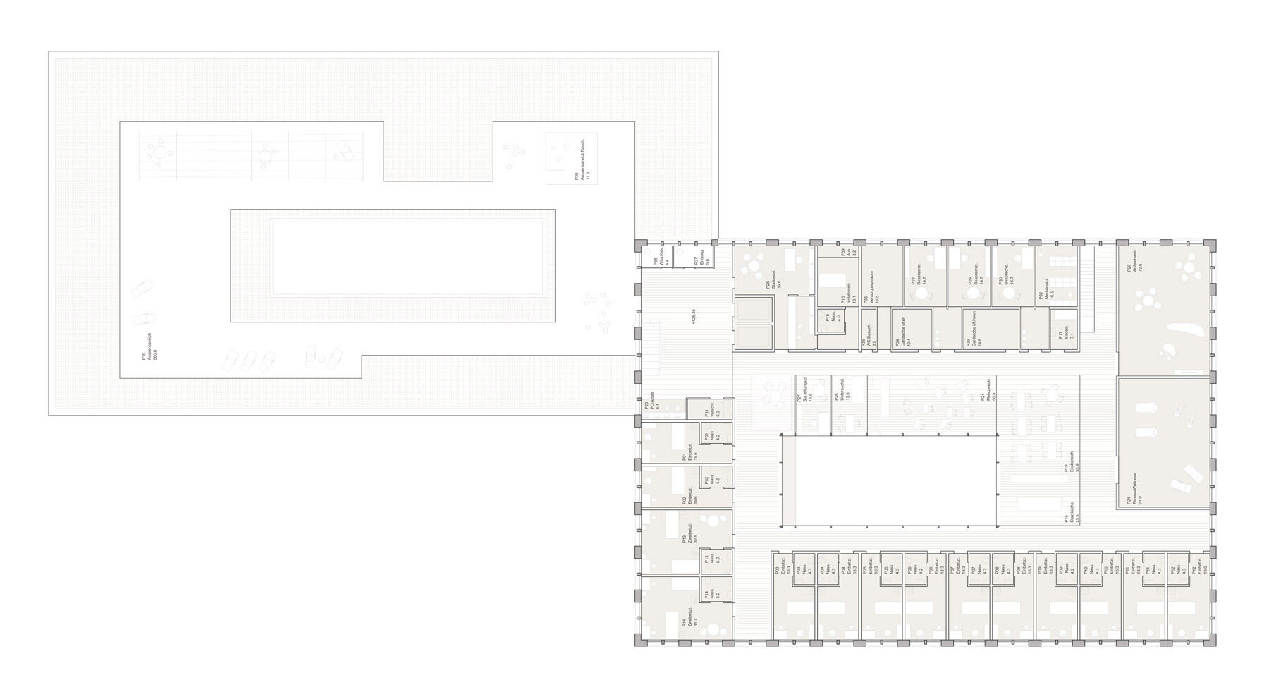
The Schlosstal Psychiatric Clinic is located in the landscape park on the River Töss – a local recreation area characterised by historic industries. The industrial monument of the former Beugger spinning mill forms the prelude to the current clinic complex. The new building is planned along the main axis of the extension and completes the ensemble. The nine wards are organised in three buildings that differ in proportions and orientation. The staggering of the volume supports the good integration into the landscape. A central core, hidden in the volumetric overlap, serves all the new stations. Short and safe routes guarantee an efficient organisation of daily processes. More
In the first stage, the two buildings facing east and west will be built. For the future expansion, the proposed composition allows for various possibilities: On the one hand, a repetition of the two buildings in an east-west direction along the main axis is possible. On the other hand, as suggested in the site plan, a block could be connected to the north of the central building core.
The new building interprets the appearance of the historic spinning mill, with its perforated facade. Its facade is divided into a plinth, a two-storey body and the roof fascia. The latter respects the ridge line of the historic facade.
The existing landscape provides an excellent setting for the new building. It is easily accessible on foot through the historic gardens, where a side entrance for visitors and staff is planned. The reception, an open and transparent volume, is located in the connecting section. The staircase is the centrepiece of the new building, connecting the wards and generating a pinwheel circulation that is transferred to the ward floor plans. The visual relationships created by this to the outside space enable good internal orientation. The functional rooms are integrated in the core of the building.
Less









