Renovation Scheibenackerstrasse studio
Scheibenackerstrasse, 9000 St.Gallen
Direct commission, 2017
2018
Private
Lukas Murer
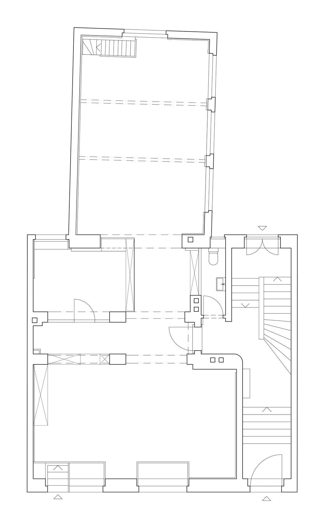
The apartment building on Scheibenackerstrasse is part of a perimeter block in the St. Fiden quarter and is a listed building. The commercial space on the mezzanine floor was converted into a rented apartment. Due to an inner courtyard extension, the apartment has a considerable depth. Therefore, the spatial axes and visual relationships are of great importance. Non-load-bearing interior walls were removed and a central axis was established in plan. More
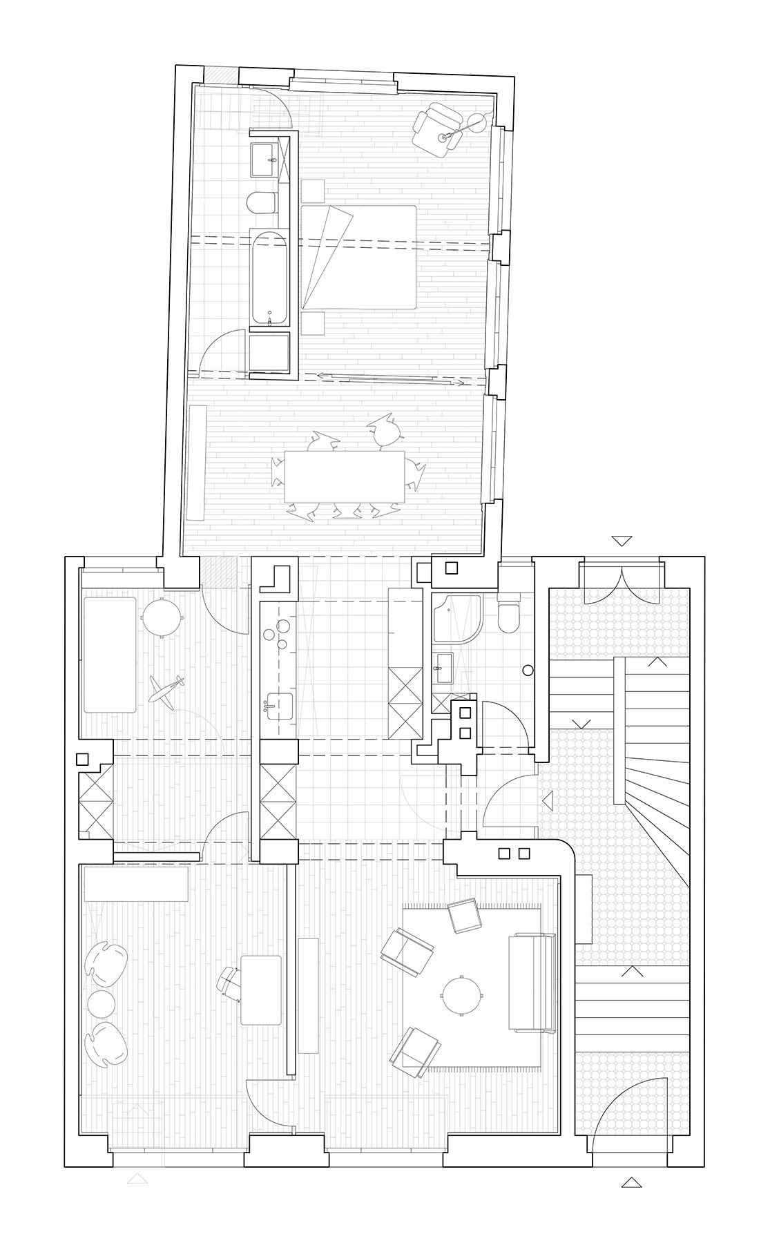
The entrance to the apartment is in the stairwell and leads into an entrance hall that, together with the kitchen, forms the centre of the apartment. The adjoining rooms are designed to be neutral and allow for different uses. The largest room faces the street. Together with two other rooms, it forms a group of rooms within the perimeter block building. A second room sequence is located in the annex building and consists of a more intimate, rear layer of rooms with a spacious bathroom. The rooms in both parts of the building can be linked and accessed in different circulation paths. The open kitchen in the middle makes it possible to experience the entire depth of the plan. The generous room height underpins the spacious character of the apartment.
When designing the apartment, the focus was on preserving as many original details as possible. The well-preserved wall panels were restored and supplemented where necessary. Different shades of grey and white characterise the rooms. The studio is reminiscent of how it once was and at the same time has been transformed into a new whole.
Less
















