Kantons- und Berufsfachschule Uetikon

Ort

Seestrasse, 8707 Uetikon am See

Auftragsart

Wettbewerb, 4. Rang 2022

Auftraggeber

Kanton Zürich, Baudirektion

Freiraumgestaltung

Antón Landschaft GmbH, Zürich

Das CU-Areal verfügt dank dem historischen Gebäudebestand und der Lage am Zürichsee über einzigartige Qualitäten. Die Zeugen der industriellen Vergangenheit bleiben bei der Umnutzung erhalten und werden zu Identifikationsmerkmalen. Die neuen Nutzungen konzentrieren sich auf der nördlichen Perimeterhälfte, wodurch entlang dem Seeufer viel Platz für Freiräume bleibt. Die zwei langgestreckten Neubauten führen mit ihren parallel zum Ufer verlaufenden Traufen die bestehende Ordnung fort. Quer zur Baustruktur sorgen Freiflächen sowie zwei grosse Öffnungen beim Neubau der Berufsfachschule für Durchblicke Richtung See. Das bestehende Kammerofengebäude wird zu einem gut sichtbaren Wahrzeichen. Seine historischen Stirnfassaden prägen den grosszügigen Platz im Westen, der eine einzigartige Atmosphäre aufweist. Er bildet das zentrale Forum und richtet sich als Aufenthalts- und Veranstaltungsort an die gesamte Bevölkerung. Anstelle des Laborgebäudes im Osten tritt ein baumbestandener Park, der den Blick Richtung Hafen und See freigibt. Erschlossen über eine Passerelle, die von der Alten Landstrasse auf den Campus führt, verfügt das neugestaltete CU-Areal über das Potenzial, zu einem pulsierenden Quartierzentrum direkt am Zürichsee zu werden. Mehr

Das Kammerofengebäude verdankt seinen einzigartigen Charakter der massiven Westfassade mit den bogenförmigen Öffnungen und der offenen Stahlkonstruktion im gedeckten Hofbereich. Hier betreten die Lehrpersonen und Schülerinnen der Kantonsschule den Hof und gelangen über diesen in die beiden Längsbauten. Nahe vom Hauptzugang befindet sich die Mediothek sowie der Kulturraum, die auch Nutzenden ausserhalb des Schulbetriebs zur Verfügung stehen. Nord- und Südtrakt weisen die gleiche Logik auf: Hofseitig erstrecken sich die offenen Lernlandschaften, entlang der Gebäudeaussenseiten reihen sich die Klassenzimmer aneinander.
Das Ofengebäude in Ufernähe wird erhalten und im Innern ergänzt, um die neuen Nutzungen aufnehmen zu können. Von der Transformation zeugt der in Glas gehüllte westliche Gebäudetrakt, der zu einer Orangerie wird. Tagsüber verpflegen sich hier die Mensagäste zwischen den Pflanzen, nachts wird der Raum zu einer grossen Laterne.
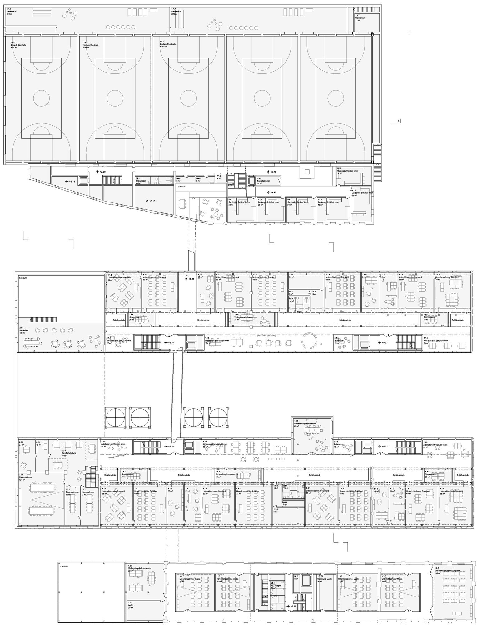
Nördlich der Seestrasse steht das ehemalige Maschinenhaus. Dieses wird mit einem siebengeschossigen Sport- und Unterrichtsgebäude erweitert, wobei die fünf Turnhallen an den Bestand angebaut sind. Dahinter ragen die drei Unterrichtsgeschosse in die Höhe. Auf der Westseite liegt die hohe Experimentierhalle, die dem Chemie- und Physikunterricht dient. Dieser Raum bietet Aussicht über den Campus bis zum See und prägt mit seinen hohen Fenstern den Ausdruck des Gebäudes.
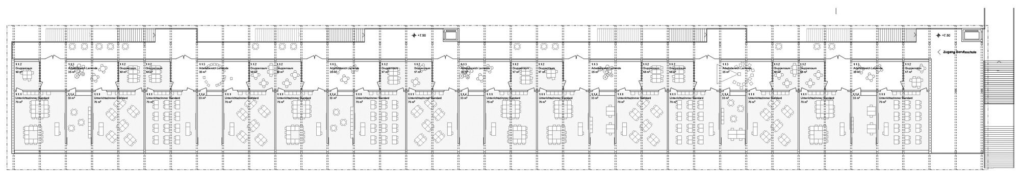
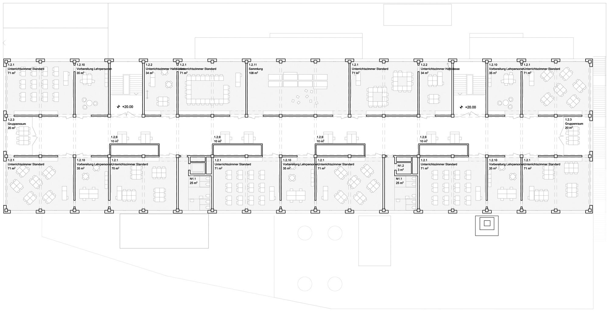
Im langen Neubau im Westen des Perimeters sind auf den Obergeschossen die Berufsfachschule, im Erdgeschoss die öffentlichen Nutzungen angesiedelt – Kleingewerbe am einen, die Aula am anderen Ende. Diese verfügt an der Stirnfassade über ein Foyer und bildet zusammen mit dem Forum im Freien eine lebendige Arealmitte. Die Klassenzimmer im zweiten Obergeschoss reichen bis unter den First und verfügen dort über ein Fensterband, das zusätzliches Licht aus Norden in die grossen Räume bringt. Mit dem Giebeldach, das in der Mitte verspringt, erhält das Haus zwei markante Stirnseiten und erinnert an die prägnante Silhouette des Kammerofengebäudes.
Wo bestehende oder gar denkmalgeschützte Fassaden vorhanden sind, werden diese grösstenteils erhalten, sorgfältig restauriert und in ihrem ursprünglichen Ausdruck gestärkt. Fenster, die im Laufe der Zeit zugemauert wurden, werden wieder geöffnet und verglast, wodurch die dicken Mauern spürbar sind. Bei den Nord- und Südfassaden des Kammerofengebäudes werden die Wellblech-Verkleidungen ersetzt. In Holz gerahmte Festverglasungen geben zukünftig Einblick in den Schulalltag.

Der Neubau der Berufsfachschule weist einen industriellen Charakter auf. Die repetitive Struktur des Holzbaus ist in den Längsfassaden ablesbar. Grosszügige Verglasungen markieren den öffentlichen Charakter dieses Hauses. Der Luftraum über der Aula ist von halbtransparenten Wellplatten aus Polycarbonat umhüllt, die abends sanft durchschimmern. Auch in den Fassaden des Sport- und MINT-Gebäudes kommt die innere Struktur zum Ausdruck. Hohe Fenster zeugen von besonderen Nutzungen wie der Experimentierhalle oder den Turnhallen.


Weniger

Zentraler Begegnungsort am Seeufer
Situation
Grundriss 6. OG MINT
Passarelle als Zugang zum Areal
Grundriss 1.OG
Aussenraum zwischen Mediathek und Industriehof
Querschnitt Bildungszentrum BZZ
Experimentierhalle mit Seeblick
Grundriss 2. OG Bildungszentrum
Klassenzimmer im Dachgeschoss
Ansicht Süd-West Bildungszentrum
Ansicht Süd-West MINT und Sportbereich
Querschnitt Ofengebäude
Offene Lernlandschaften entlang der Fassaden
nach oben