Current
2025
2024
2023
2022
2021
2020
2019
2018
2017
2016
2015
2014
2013
2012
2011
2010
2009
2008
2007
2006
2005
2004
2003
2002
2001
2000
1999
1998
1997
1996
1995
1994
1993
1992
1991
1990
1989
1988
1987
1986
1985
1984
1983
1982
1981
1973
Current

Espenhof Nord retirement homes Zürich

Under construction

Schaffhausen hospital

In planning

Giebeleich retirement centre Opfikon

In planning

Refurbishment school In der Ey

In planning

Saatlen school complex Zürich

Under construction

Triemli / In der Ey school complex Zürich

Under construction

Sefar Radix Heiden

In planning

Im Grüebli housing Staad

Under construction

Tannenstrasse housing St.Gallen

Under construction

Sandrainstrasse house St.Gallen

In planning

Vadianstrasse renovation St.Gallen

In planning

Südhalde housing Ennetaach

In planning

Baumweissling housing Chur

In planning

Stephanshornweg housing St.Gallen

In planning

Luzern children's hospital and women's clinic

Under construction

2025

Schlosstal psychiatry Winterthur

Completed

Public service building Uster

Competition, 2nd Prize

Eye clinic Rosenbergstrasse St.Gallen

Completed

Bahnhofstrasse house Wil

Detailed design

2024

Wolfacker housing Kreuzlingen

Completed

Stephanshornweg housing St.Gallen

Competition, 1st Prize

Giebeleich retirement centre Opfikon

Competition, 1st Prize

Thurgauerstrasse school complex Zürich

Completed

Sonnenhaldenstrasse renovation St.Gallen

Completed

Guisanstrasse house St.Gallen

Completed

Swimming pool and Lido Rapperswil

Competition, 3rd Place

2023

Wiesenstrasse house St.Gallen

Completed

Portal UZH Zürich

Competition, 2nd Prize

Renovation Gottfried-Keller house St.Gallen

Completed

Utogrund school complex Zürich

Competition

Entlisberg school complex Zürich

Competition, 2nd Prize

2022

Renovation Helvetia Kreuzbau St.Gallen

Completed

St.Gallen hospital extension H08

Competition, 2nd Prize

Königsfelden forensic psychiatry

Completed

Cantonal and vocational school Uetikon

Competition, 4th Prize

Raduner area Horn

Study

2021

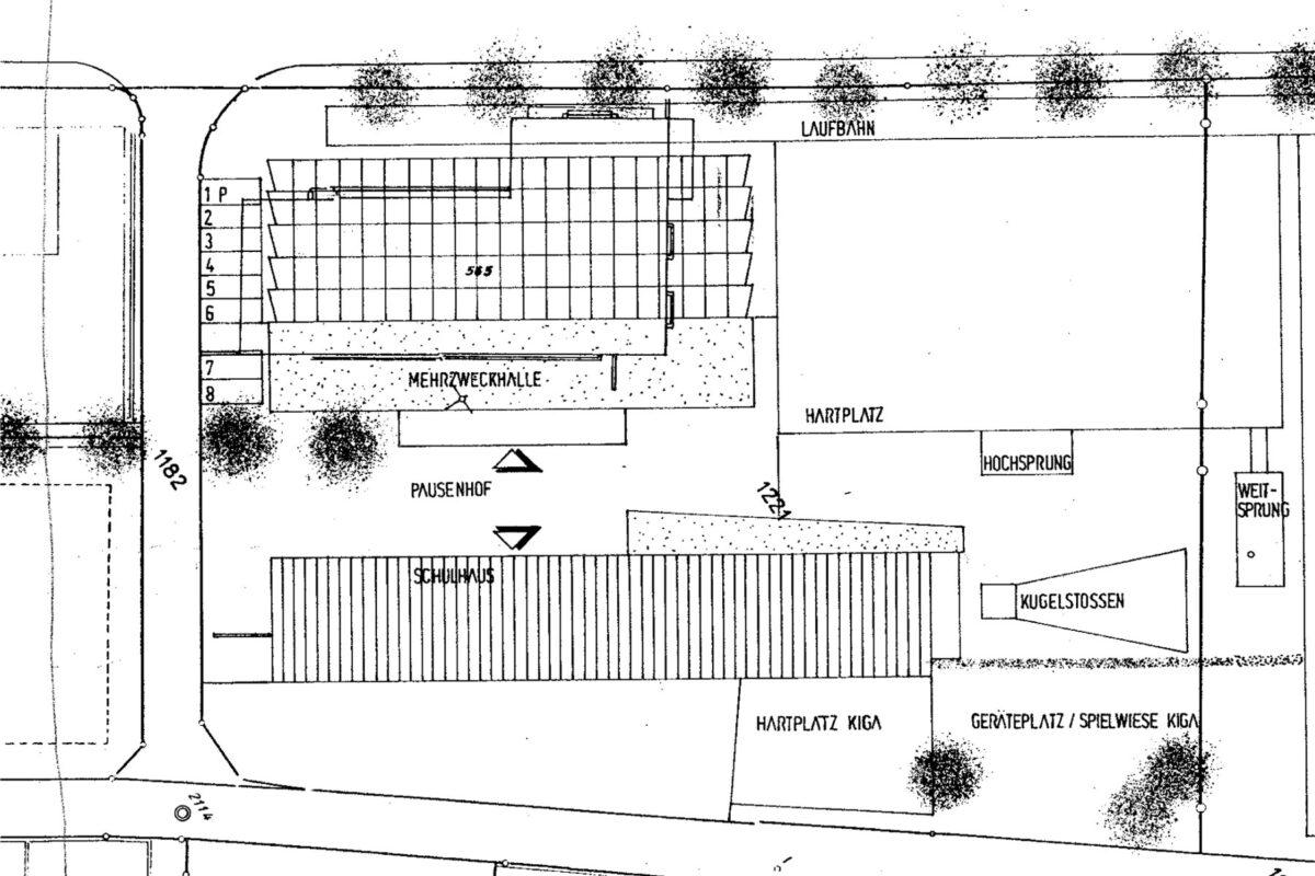
Triemli / In der Ey school complex Zürich

Competition, 1st Prize

Cantonal school Baden

Competition, 3rd Prize

Renovation Linth hospital Uznach

Completed

Kindergartenweg housing Niederuzwil

Completed

Oedenhof area Wittenbach

Completed

Löwengarten area Rorschach

Completed

Platztor campus St.Gallen

Competition

2020

Center for dental medicine ZZM Zürich

Competition, 2nd Prize

Luzern children's hospital and women's clinic

Competition, 1st Prize

Saatlen school complex Zürich

Competition, 1st Prize

Extension Bitzi Mosnang

Completed

Im Isengrind secondary school Zürich

Competition

2019

Baumweissling housing Chur

Competition, 1st Prize

Linth hospital Uznach

Completed

Espenhof Nord retirement homes Zürich

Competition, 1st Prize

Gerbe sports hall Heiden

Competition, 1st Prize

Emil Frey showroom St.Gallen

Completed

2018

Peter und Paul housing St.Gallen

Completed

Conversion Marktplatz and Bohl St.Gallen

Competition, 6th Prize

Renovation Scheibenackerstrasse studio St.Gallen

Completed

Eber house Zürich

Competition, 7th Prize

Feldmühle area Rorschach

Study

Steinrieselnstrasse housing Herisau

Completed

Waste-to-energy plant St.Gallen

Completed

2017

Schaffhausen hospital

Competition, 1st Prize

Renovation St. Maria Neudorf church St.Gallen

Completed

Thurgauerstrasse school complex Zürich

Competition, 1st Prize

Kindergartenweg housing Niederuzwil

Competition, 1st Prize

Appenzell hospital

Competition, 5th Prize

Extension prison Lenzburg

Completed

Waldacker housing St.Gallen

Competition

2016

Renovation Gartenstrasse housing and commerce St.Gallen

Completed

Renovation Hotel Walhalla St.Gallen

Competition, 1st Prize

Sonnmatt retirement homes Uzwil

Competition, 4th Prize

TON sideboard

Furniture

Trischliplatz house Rorschach

Completed

Bitzi Mosnang

Competition, 1st Prize

Fuchsenstrasse housing St.Gallen

Competition, 4th Prize

2015

Rietwis housing Häggenschwil

Completed

Villa Rietberg Rorschach

Completed

Schlosstal psychiatry Winterthur

Competition, 1st Prize

Sömmerli daycare St.Gallen

Competition, 3rd Prize

Zollhaus housing and commerce

Competition

Ludwigstrasse housing St.Gallen

Competition

Crematorium Thun

Competition
2014

Hengartner apartment St.Gallen

Completed

Goethestrasse housing St.Gallen

Completed

Renovation Neptun house Rorschach

Completed

Bässlergut prison Basel

Competition, 1st Prize

Cardiac centre Bern hospital

Competition, 5th Prize

Königsfelden psychiatry

Competition, 2nd Prize

2013

Hörler house Wil

Completed

Raiffeisen bank Rorschach

Completed, with Bruno Bosshard

Schwertgasse house St.Gallen

Completed

Oedenhof area Wittenbach

Competition, 1st Prize

Peter und Paul housing St.Gallen

Competition, 1st Prize

Tripple sports hall Wettingen

Competition, 3rd Prize

2012

Primary school Muolen

Completed

Renovation Deuel house St.Gallen

Completed

Linth hospital Uznach

Competition, 1st Prize

Rietwis housing Häggenschwil

Competition, 1st Prize

Huber house Herisau

Competition, 1st Prize

Riethüsli school St.Gallen

Competition, 3rd Prize

2011

Forensic psychiatry Bern

Completed

Hörler house Wil

Competition, 1st Prize

Cantonal school Chur

Competition, 6th Prize

2010

Balgrist hospital Zürich

Competition, 2nd Prize

Elderly living and daycare Mörschwil

Competition, 5th Rank

Löwengarten area Rorschach

Competition, 1st Prize

Exhibition Klarer Fenster

Completed

2009

Birnbäumen housing St.Gallen

Completed

Bank building Zuzwil

Completed

Altstätten hospital

Competition, 1st Prize

Heiligkreuzstrasse housing and commerce St.Gallen

Study

2008

Orangerie botanical garden St.Gallen

Completed

Nursing home OBV St.Gallen

Completed

Webersbleiche housing and commerce St.Gallen

Completed

Lenzburg prison

Completed

Bank building Zuzwil

Competition, 1st Prize

Cantonal hospital Chur

Competition, 4th Prize

2007

Residential towers Raduner area Horn

Competition, 1st Prize

Goldbrunnen housing St.Gallen

Completed

Alti Moschti housing Mörschwil

Completed

Extension Garage Stahel Oberach

Completed

Nursing home Bütschwil

Completed

Primary school Laufen

Competiton, 3rd Prize

Renovation Langgasse housing St.Gallen

Completed

2006

Stahl business centre St.Gallen

Completed

Stofel Süd housing Teufen AR

Completed

Bitzi Mosnang

Completed

Brühltor city parking St.Gallen

Completed

Renovation Steig school complex Wittenbach

Completed

Au sports hall Urnäsch

Completed

Gallus F. Rüesch Herisau

Completed

Renovation Achslenstrasse 5–7 housing St.Gallen

Completed

Renovation Credit Suisse St.Gallen

Completed

2005

Falkensteinstrasse housing St.Gallen

Completed

Renovation Kreuzstrasse housing Engelburg

Completed

Renovation dental practice Wil

Completed

Bostadel prison Menzingen

Completed

Primary school Häggenschwil

Completed

2004

Renovation ASGA office building St.Gallen

Completed

Renovation Tamburlini house St.Gallen

Completed

Birnbäumen housing St.Gallen

Competition, 1st Prize

2003

Connecting structure Lindenhof nursing home St.Gallen

Completed

Hotel Radisson SAS St.Gallen

Completed

Café Spörri Teufen AR

Competition, 1st prize

Renovation Steig primary school Wittenbach

Competition, 1st Prize

Vogelherd housing St.Gallen

Completed

2002

Altstätten prison

Completed

Remodelling Schlössli Tobel

Completed

Egeli house Teufen AR

Completed

Stäger house Häggenschwil

Completed

Raiffeisenbank Häggenschwil

Fertigstellung

Alti Moschti housing Mörschwil

Competition, 1st Prize

Assisted living Sargans

Competition, 2nd Prize

2001

Regional prison Thun

Completed

Notkerianum nursing home St.Gallen

Completed

Renovation Trautenaustrasse house Berlin

Completed

Renovation Hermann-Greulich-Strasse housing Arbon

Completed

Renovation Villa Scheffelstein St.Gallen

Completed

Village centre Samedan

Competition, 1st Prize

Extension nursing home Arbon

Competition, 2nd Prize

Sports centre St.Gallen

Competition 7th Prize

2000

Steinach Assisted Living

Completed

House Müller Häggenschwil

Completed

Penitentiary Bostadel Menzingen

Competition 1st Prize

Extension prison Lenzburg

Competition, 1st Prize

Bitzi Mosnang

Competition, 1st Prize

Oberhalden housing Engelburg

Competition, 1st Prize

Sports hall Urnäsch

Competition, 1st Prize

1999

Barrage de Rochemaure Montélimar

Completed

Xerxes office building Appenzell

Completed

Extension Emil Frey St.Gallen

Completed

Brückenwaage commercial building St.Gallen

Completed

Renovation Abraxas office building St.Gallen

Completed

Raiffeisenbank and village centre Neukirch

Completed

Renovation Migros Bank St.Gallen

Completed

Extension Huber apartment St.Gallen

Completed

Renovation Reppischhallen Dietikon

Completed

Extension Wild + Küpfer factory Schmerikon

Completed

Migros Bank St.Gallen

Competition, 1st Prize

Garage Hirsch St.Gallen

Competition, 1st Prize

1998

Zum Hammer house Kreuzlingen

Completed

Multipurpose complex Niederbüren

Completed

Raiffeisenbank and retirement homes Muolen

Completed

Renovation Tschudiwies school building St.Gallen

Completed

1997

Laboratory Building Geberit Jona

Completed

Retirement homes Eggersriet

Completed

Regional Prison Thun

Competition, 1st Prize

1996

Barrage de Rochemaure Montélimar Frankreich

Competition, 1st Prize

Assisted living Steinach

Competition 1st Prize

Oberhalden school complex Engelburg

Competition, 7th Prize

Correctional facility Kempten Germany

Competition, purchased proposal

1995

Renovation church Häggenschwil

Completed

Lindenhof nursing home St.Gallen

Completed

Self service zone Kantonalbank St.Gallen

Completed

Wiedersheim law firm Frauenfeld

Completed

SKA educational centre St.Gallen

Completed

Retirement homes Eggersriet

Competition, 1st Prize

Wolfacker housing Kreuzlingen

Competition, 1st Prize

Altstätten prison

Competition, 1st Prize

Dietfurt school complex Bütschwil

Competition, 3rd Prize

1994

Kindergarten and school building Häggenschwil

Completed

Renovation Adler hall Muolen

Completed

Renovation Tulpenstrasse Gossau

Completed

Schönengrund multi-purpose complex

Competition, 1st Prize

Raiffeisenbank and retirement homes Muolen

Competition, 1st Prize

Kreuzstrasse Herisau

Competition, 1st Prize

Saxerriet prison Salez

Competition, 2nd Prize

Giesingen nursing home Feldkirch Austria

Competition, 2nd Prize

Housing Rorschacherberg

Competition, 2nd Prize

Schlossbach Rorschacherberg

Competition, 2nd Prize

Nofels nursing home Feldkirch Austria

Competition, 3rd Prize

1993

Räss-Beeli house Häggenschwil

Completed

Multi purpose complex Schönengrund

Completed

Lindenhof housing Flawil

Completed

G. Eberle house Häggenschwil

Completed

1992

St. Georgenstrasse studio St.Gallen

Completed

Renovation Schorenstrasse housing St.Gallen

Completed

Renovation Sonnenberg house Lömmenschwil

Completed

Renovation Viletta gatehouse St.Gallen

Completed

Renovation Dr. Hagmann apartment St.Gallen

Completed

Lerchenfeld housing St.Gallen

Competition, 1st Prize

SAK office building St.Gallen

Competition, 1st Prize

Housing Mühlheim

Competition, 5th Prize

1991

Accordina housing Altstätten

Competition, 2nd Prize

Sports hall Murgenthal

Competition, 3rd Prize

Tigerbergstrasse housing St.Gallen

Competition, 3rd Prize

School complex Murgenthal

Competition, 1st Prize

1990

Renovation Vadiana library St.Gallen

Completed

Renovation J. Eberle house

Completed

Renovation Flessati house

Completed

SBB area Oberstrasse St.Gallen

Competition, 2nd Prize

School complex Gais

Competition, 5th Prize

1989

Renovation University of St.Gallen

Completed

Nursing home Degersheim

Completed

Fire brigade depot St. Margrethen

Competition, 2nd Prize

Nursing home Heiden

Competition, 4th Prize

School complex Gais

Competition, 5th Prize

1988

Housing Egnach

Completed

Renovation Tschudiwies sports hall St.Gallen

Completed

Parkhotel Casino St.Gallen

Competition, 1st Prize

Renovation housing Niederzuwil

Completed

Lindenhof housing Flawil

Competition, 1st Prize

1987

Hörler carpenter's workshop St.Gallen

Completed

Giacomuzzi house Krinau

Completed

A. Eberle house Häggenschwil

Completed

Achslengut housing St.Gallen

Competition, 1st Prize

1986

Municipality building Krinau

Completed

Bus depot St.Gallen

Competition, 2nd Prize

1985

Im Russen housing St.Gallen

Completed

Nursing home Degersheim

Competition, 1st Prize

School complex Abtwil

Competition, 5th Prize

Hof school complex St.Gallen

Competition, 6th Prize

1984

School complex Mörschwil

Competition, 2nd Prize

Rehetobel multi-purpose complex

Competition, 3rd Prize

Renovation Restaurant Ochsen Niederuzwil

Completed

1983

Osterwalder house Häggenschwil

Completed

Municipality building Krinau

Competition, 1st Prize

1982

Remishueb housing St.Gallen

Competition, 3rd Prize

Extension University of St.Gallen

Competition, 3rd Prize

Olma fair hall St.Gallen

Competition, purchased contribution

1981

Renovation primary school Häggenschwil

Completed

Renovation Restaurant Ochsen Lömmenschwil

Completed

Extension municipality building Häggenschwil

Competition, 3rd Prize

1973

St. Bernard chapel Bollenwees

Completed

back to top