Areal Löwengarten

Ort

Löwengartenareal, 9400 Rorschach

Auftragsart

Wettbewerb, 1. Rang 2010

Ausführung

2016–2021

Auftraggeberin

UZE AG; Rosenberg Invest AG

Landschaftsarchitektur

Pauli Stricker GmbH, St.Gallen

Tragwerksplanung

Wälli AG Ingenieure, St.Gallen

HLKKS-Planung

Kempter + Partner AG, St.Gallen

Signaletik

HinterSchlatterFeuz Grafik, Zürich

Fotografie

Lukas Murer

Das Löwengartenareal ist für Rorschach ein wichtiger und geschichtsträchtiger Ort. Durch die Schliessung der Brauerei Löwengarten verlor das Areal nach 135 Jahren seine ursprüngliche Nutzung. Die neue Bebauung knüpft mit einer dichten, städtischen Mischnutzung an die Geschichte des Ortes an. Das Areal wird wieder zu einem identitätsstiftenden Ort und einer vielschichtigen Bereicherung für das Quartier.
 
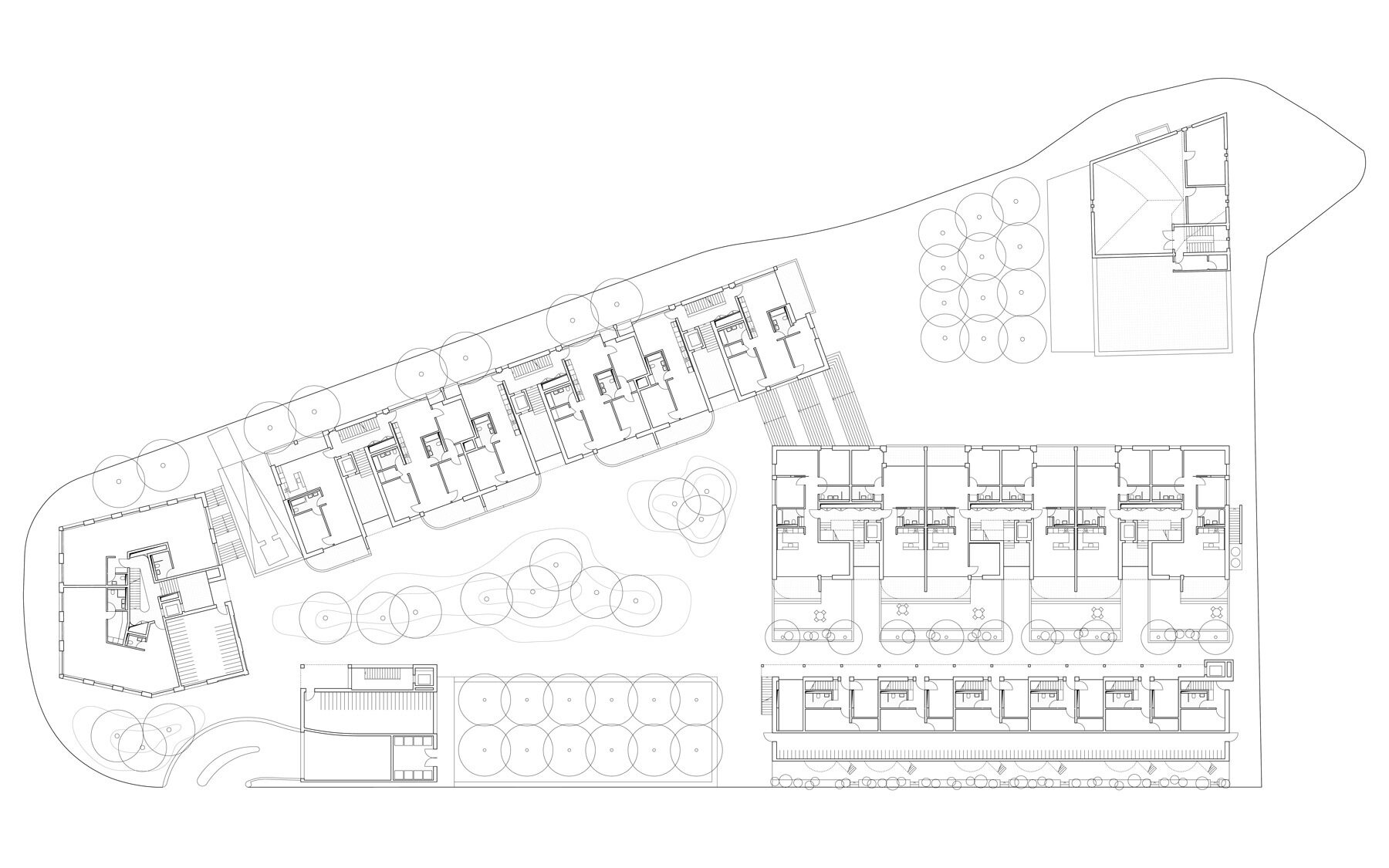
Die Parzelle wird durch die St.Gallerstrasse und die Löwengartenstrasse aufgespannt und ist durch die nach Norden abfallende Topografie geprägt. Gemeinsam mit der unter Abbruch-Schutz stehenden ehemaligen Abfüllerei definieren die beiden Längsbauten einen öffentlichen Platz. Dieser Stadtraum war in seiner Dimension in der bisherigen Struktur vorhanden und soll weiterhin als städtebaulicher Identifikationspunkt dienen. Mehr

 
Auf der Westseite schliesst ein höheres, punktförmiges Gebäude die Bebauung ab. Im Süden schaffen die Neubauten einen halböffentlichen, der Wohnnutzung zugeordneten Aussenraum. Dem südlichen Längsbau ist ein niedriger Baukörper mit Reiheneinfamilienhäusern vorgelagert. Die Neubauten passen sich in ihrer Kubatur und Höhe in die Umgebung ein und zollen der ehemaligen Abfüllerei Respekt.
 
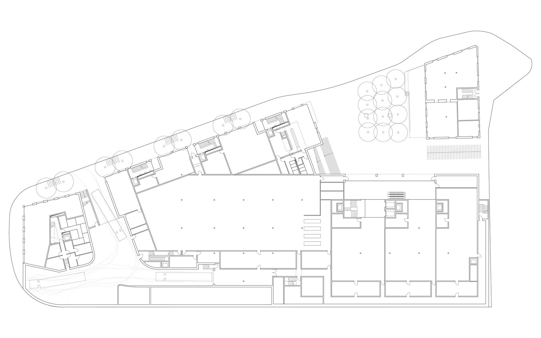
Das transformierte Areal zeichnet eine Nutzungsvielfalt bestehend aus Verkauf, Dienstleistung, Büro, Gastronomie und Mietwohnen aus. Im Erdgeschoss sind frei unterteilbare Verkaufsflächen, mehrere kleinere Läden sowie eine Gastronomienutzung im Bestandsgebäude vorgesehen. Die Dienstleistungs- und Büroflächen sind im Zwischengeschoss und im ersten Obergeschoss angeordnet. In den weiteren Obergeschossen befinden sich die Wohneinheiten. Diese sind zweiseitig orientiert und profitieren sowohl von der Besonnung aus Süden, als auch vom attraktiven Seeblick im Norden.
 
Die neuen Gebäude auf dem Löwengartenareal tragen den Geist der ehemaligen Brauerei weiter. Auf städtebaulicher Ebene geschieht dies durch die Setzung der Volumen in starker Anlehnung an die bestehende Industrieanlage. In den Fassaden wird auf der Material- sowie der Lochungsebene auf den Bestand Bezug genommen. Die ehemalige Brauerei zeigte sich trotz ihrer Grösse in kleinmassstäblichen, hochformatigen Teilvolumen. Dieses Spannungsfeld von vertikalen und horizontalen Ausdruckselementen mit teilweise hohem Maueranteil prägt den Ausdruck der Neubauten stark.
Weniger

Areal Löwengarten
Stirnfassade, Haus Nord
Ansicht, St.Gallerstrasse
Skizzen
Situationsplan
Ansicht Nord
Ansicht Ost
Binnenraum
Haus Nord
Längsschnitt, Haus Nord, Haus Ost
Querschnitt, Haus Nord, Spielplatz
Längsschnitt, Haus West, Haus Süd 1
Querschnitt, Haus Süd 1, Haus Süd 2
Hohe Räume
Blick in die Tiefe
Weite Blicke
Balkon zum See
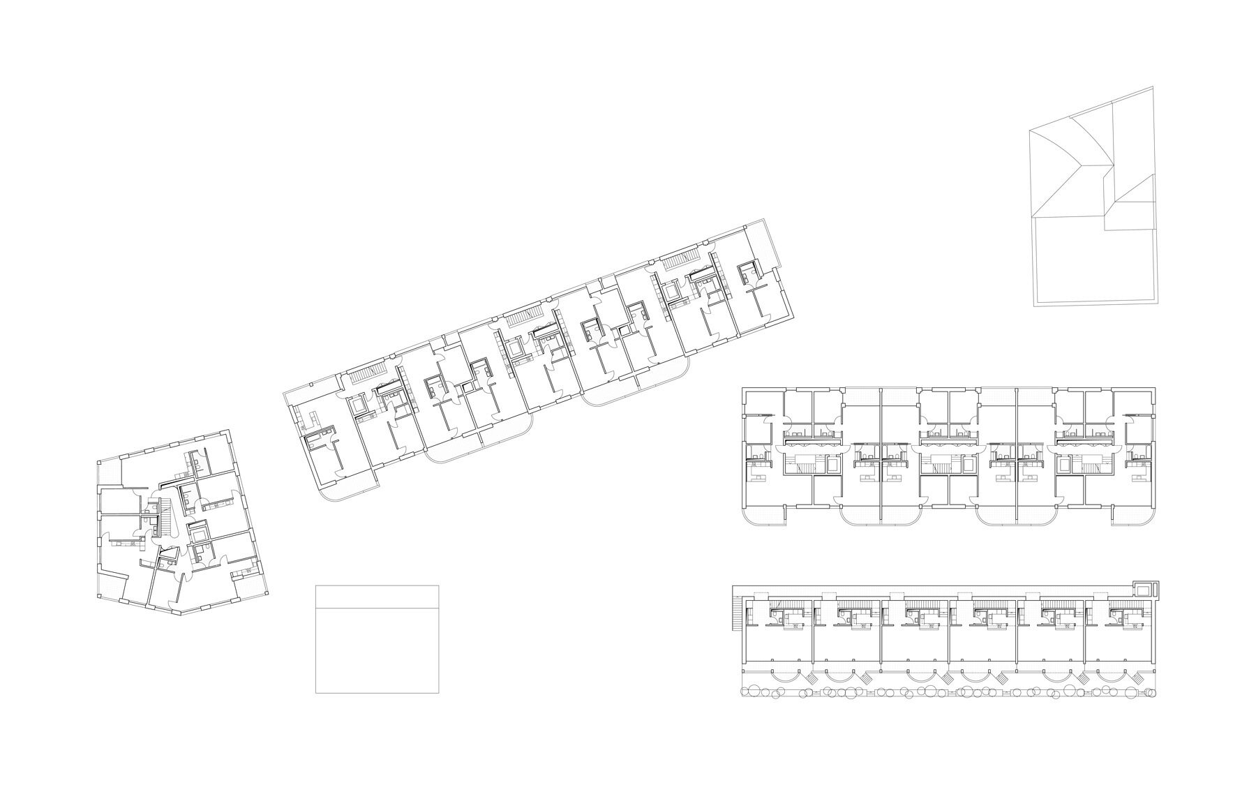
3. Obergeschoss, Wohnen
2. Obergeschoss, Gewerbe/Wohnen
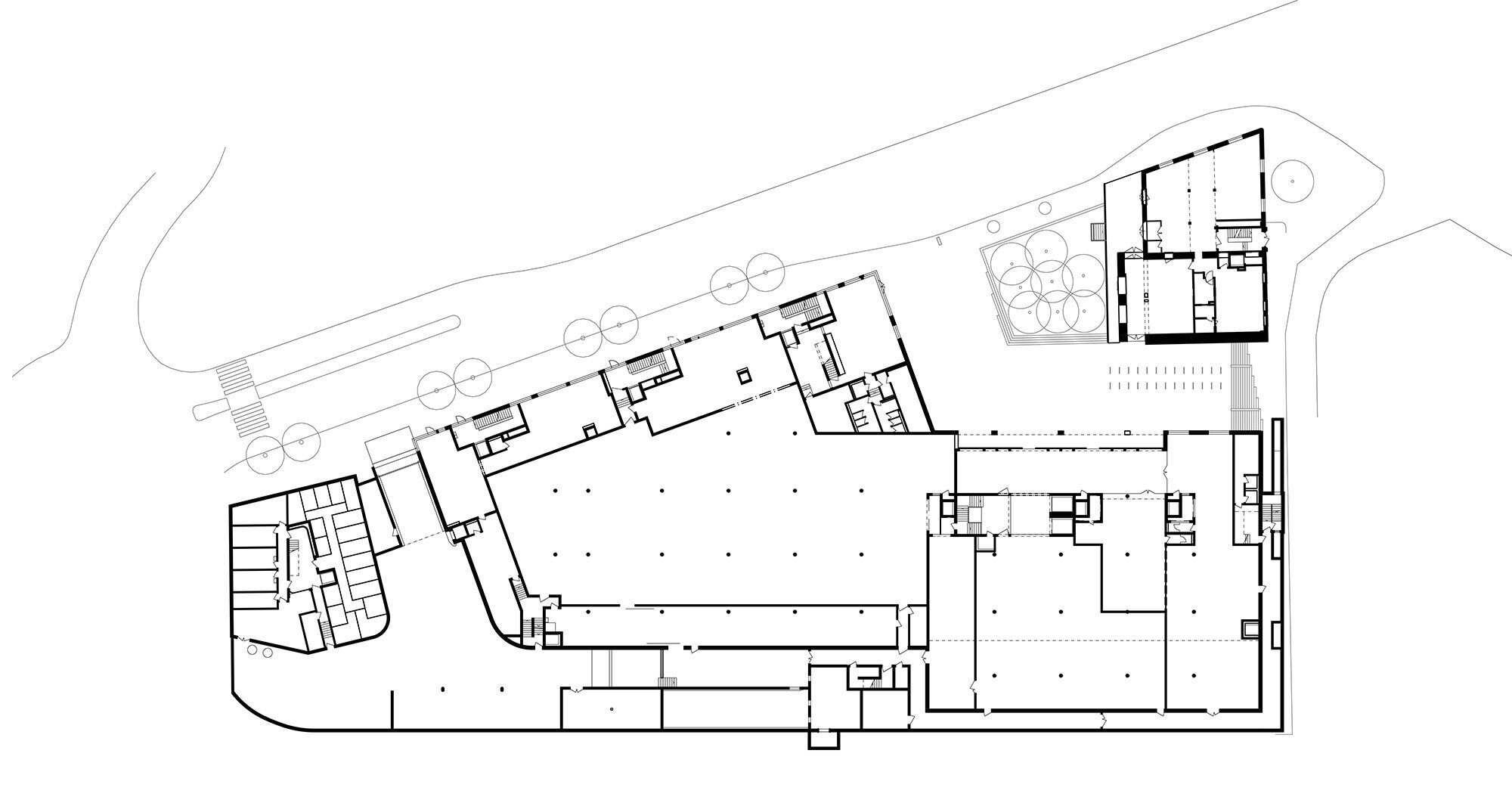
Erdgeschoss, Gewerbe
Haus West
Zugang zum Hof
Regelgeschoss, Haus West
Treppenauge
Treppenhaus, Haus West
Regelgeschoss, Haus Süd 2
Wohnenraum
Blick auf den See
Städtische Dichte
2. Obergeschoss, Haus Nord
Alte Abfüllerei
Eckzimmer Obergeschoss
Raumbezüge
Alt und Neu
nach oben